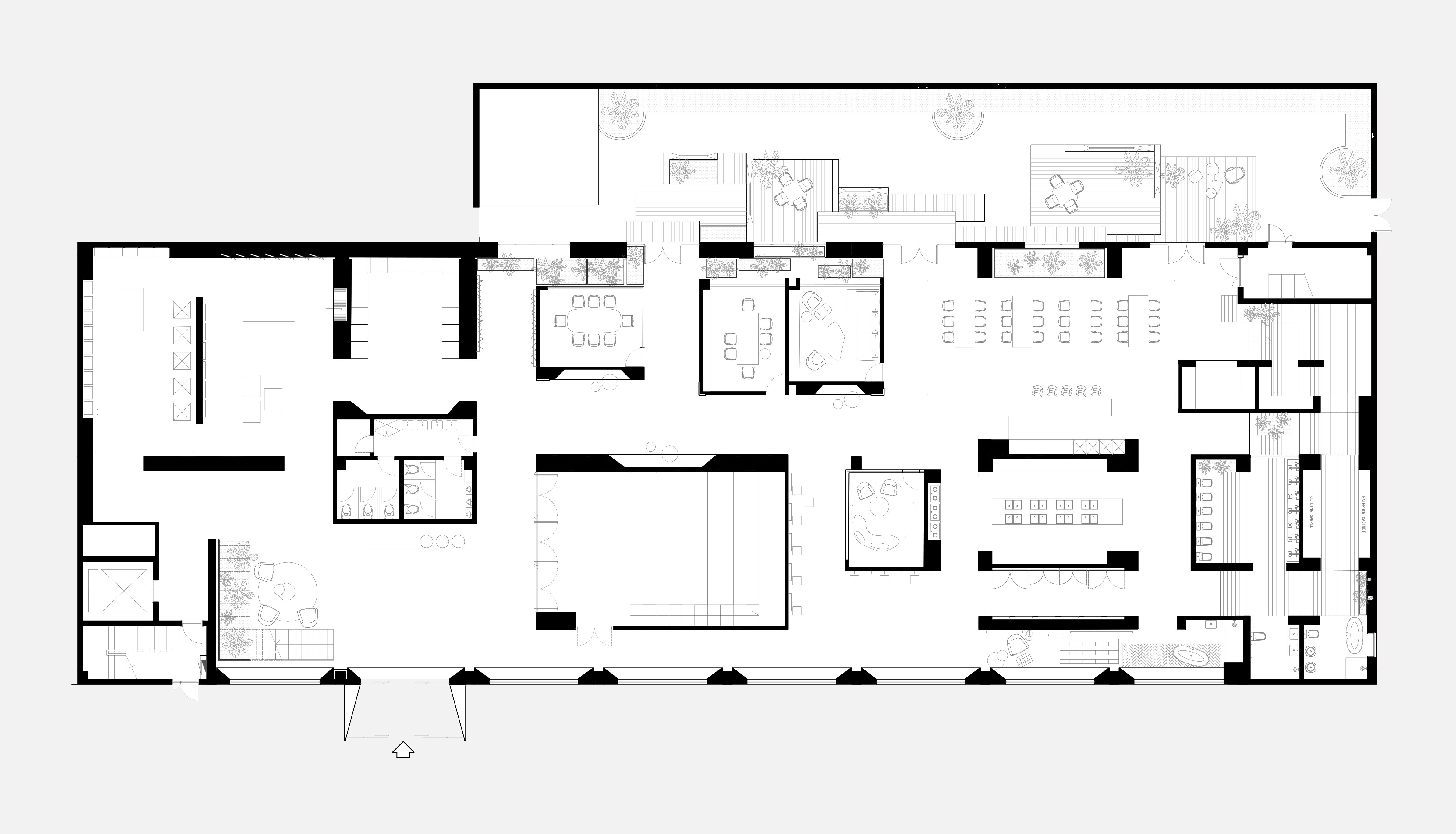
MC Corporate Showroom

Location: Shanghai | China

Surface: 1100 sqm

This is the showroom renovation project for a Shanghai-based interior decoration company. The showroom serves as both an exposition space and a customer welcome area. In this regard, the two functions intersect to create a new and innovative customer experience, reflecting the company's less traditional approach.

read more

In collaboration with arch. Gabriele Bracchi